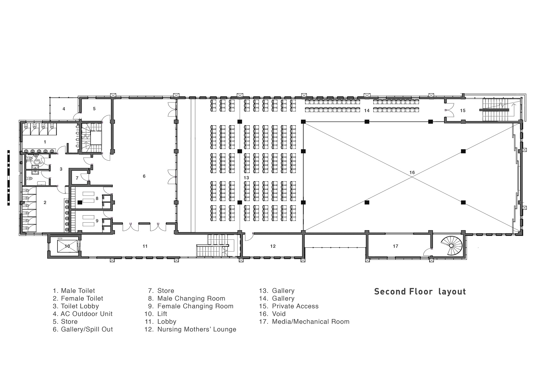
The Master's court is an iconic contemporary architecture edifice with state-of-the-art auditorium, conference, and event centre. It is a landmark on the popular Lekki-Epe expressway.
The Master's court is finished with choice materials and gives off a bold statement with its glowing religious element incorporated into the façade.







